Time properties
Back
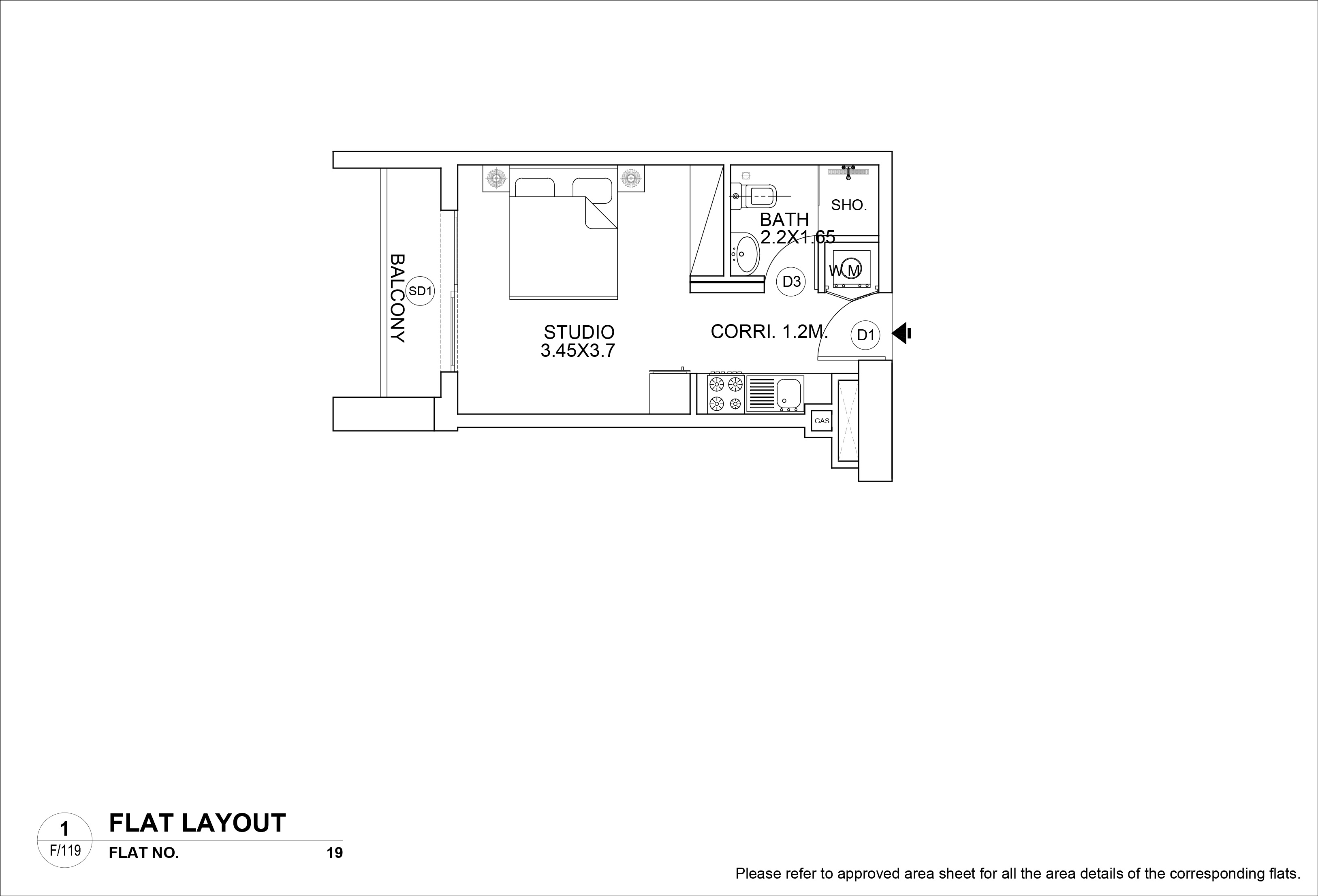
UnitNo
0119
UnitType
STUDIO
TotalArea
304.94
Floor Area
263.39
BALCONY AREA
41.55
Living Dining
3.45X3.70
Bath
2.20X1.65
Floor Unit PDF
View
Floor ImageType
View