Time properties
Back
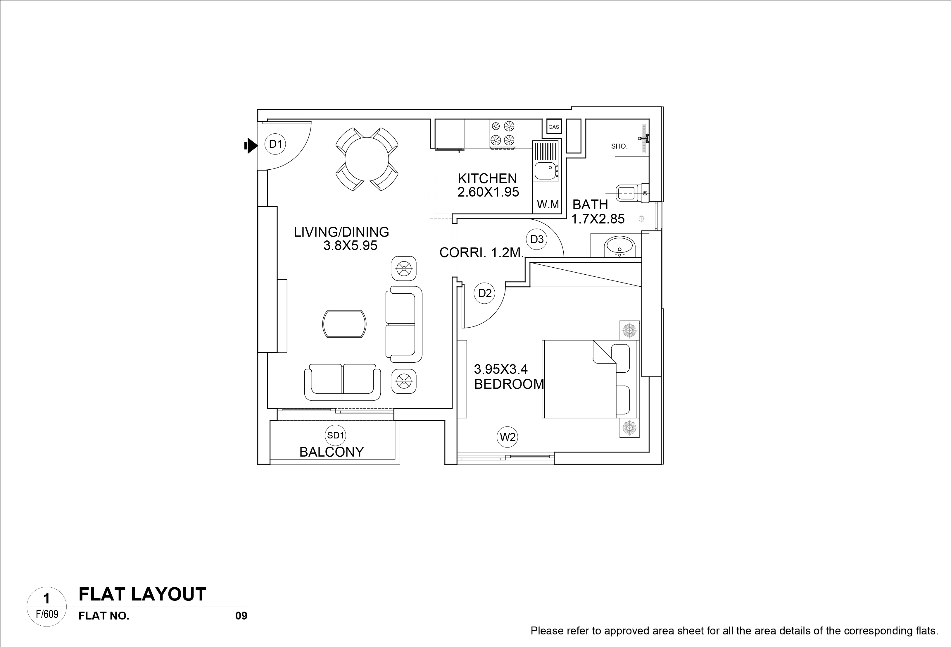
UnitNo
0609
UnitType
1 BHK
TotalArea
597.72
Floor Area
566.83
BALCONY AREA
30.89
Living Dining
3.80X5.95
Kitchen
2.60X1.95
Bed Room
3.95X3.4
Bath
1.70X2.85
Floor Unit PDF
View
Floor ImageType
View