Time properties
Back
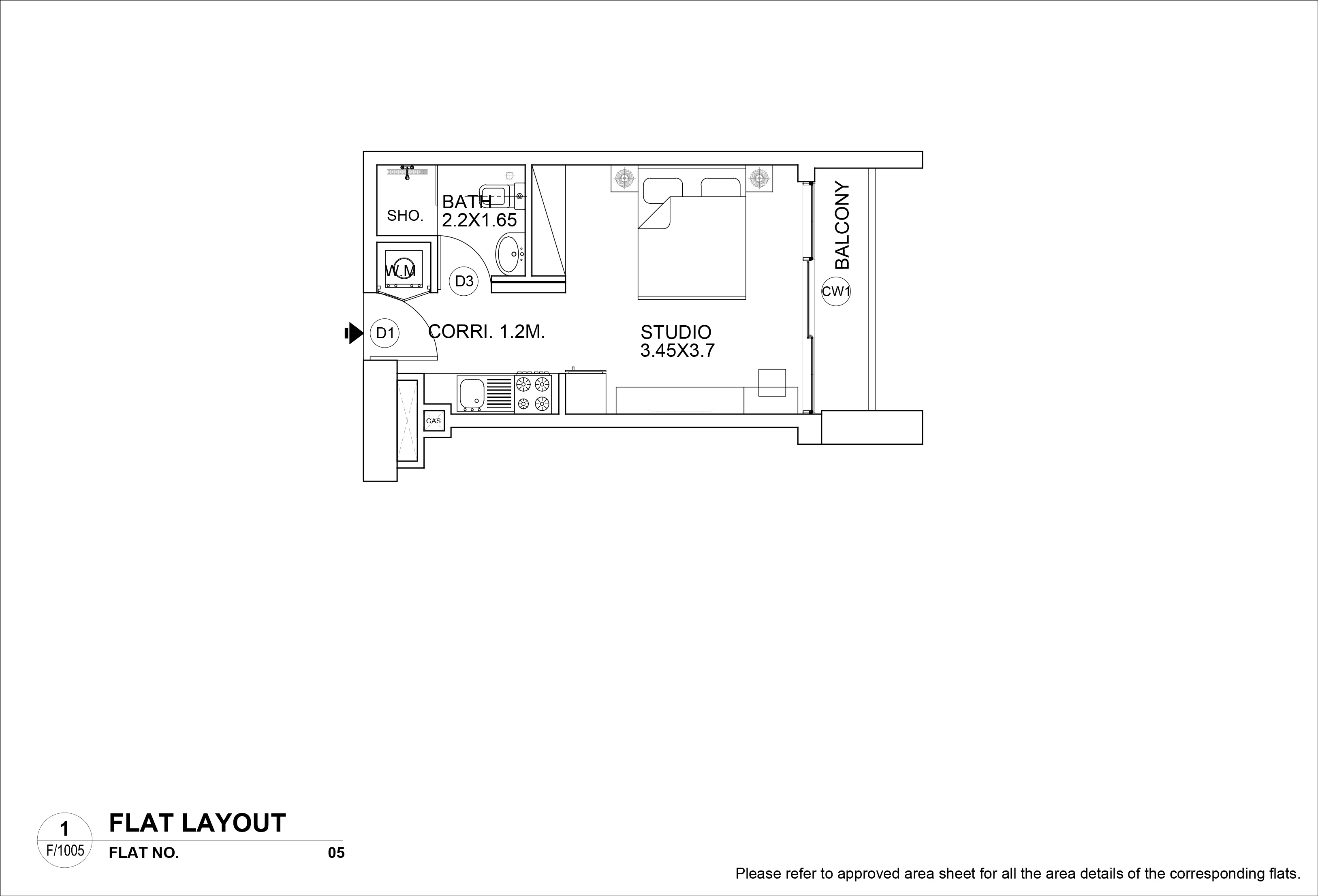
UnitNo
1005
UnitType
STUDIO
TotalArea
306.99
Floor Area
267.59
BALCONY AREA
39.40
Living Dining
3.45X3.70
Bath
2.20X1.65
Floor Unit PDF
View
Floor ImageType
View